Figure 1. Leeper House, February 2009, after rehabilitation. |
|---|
One of a handful of surviving structures in the historic Eldora community, now part of the Cape Canaveral National Seashore, the Doris Leeper House is eligible for the National Register of Historic Places primarily for its associations with a failed resort development in the 1920s and with Doris Leeper (1929–2000), a renowned artist and conservationist who acquired the house in 1958 and was instrumental in creation of the national seashore in 1975.
Located on the western shore of the barrier island at the northern end of Mosquito Lagoon, the house is about eleven air miles southeast of New Smyrna Beach and three and a half miles east of Oak Hill. There were five structures on the site in 2002—a house and garage, both apparently built in 1927; a combination guesthouse and artist's studio, built in 1969; an asphalt tennis court, which may also date to the 1960s; and a wooden dock of indeterminate age. The studio and garage have since been destroyed, and only the pilings for the dock remain intact.
Figure 2. Plat of Eldora Sportsmen Subdivision, 1926, annotated with an arrow to locate the lots purchased by Doris Leeper in 1958, |
|---|
On 8 March 1926, Charles A. and Ruth Taylor of Volusia County, Florida, recorded their plat for the Eldora Sportsmen Subdivision, which they proposed to build on a fifty-acre tract of land just south of the historic Eldora community. The property was platted into 279 small lots laid out along three wide streets running east and west as well as roads along the river and the ocean with narrow cross streets, but it appears that South Street and River Road were the only streets that were actually constructed. Already the great speculative boom in Florida real estate that had begun shortly after World War I was starting to collapse, and devastating hurricanes helped complete that process.
John Shultz of Michigan is believed to have built the first house in the subdivision, on lots four and five, in 1927. He, and others, may have remained optimistic even after the terrible hurricane that devastated Miami in September 1926, but his was the only house built in the subdivision. Shultz may not have intended the house as a year-round residence, but in any case who occupied the house and for how long over the next thirty years is unclear.
Figure 3. Doris Leeper, 1945, in Central High School, Charlotte, year book. |
|---|
Figure 4. Doris Leeper, 1995. |
Doris Leeper purchased the property in 1958, and it remained her home until her death in April 2000. She was born in Charlotte, North Carolina, on 4 April 1929, the daughter of Ernest R. and Pauline Leeper. Educated in public schools in Mecklenberg County, she graduated Phi Beta Kappa from Duke University in 1951 with a degree in art history. After a grand tour of Europe, she returned to Charlotte and worked as a commercial artist for several years. In 1958, she moved to Florida and by 1961 had turned her career to sculpture and painting. In 1969 she built the studio/guest house just east of her residence.
She was active in the efforts to preserve the natural environment, especially after creation of the Merritt Island National Wildlife Refuge in 1963 gave a boost to early efforts to preserve a 26-mile stretch of barrier island between New Smyrna Beach and the Kennedy Space Center. With strong local support, the Cape Canaveral National Seashore was established there in January 1975. Two years later, Leeper sold her house and studio to the federal government for inclusion in the new seashore, while retaining a life estate in the property.
Listed in Who's Who in American Art as early as 1976, Leeper founded the internationally-known Atlantic Center for the Arts in New Smyrna Beach, Florida, in 1977. She received an honorary doctorate from her alma mater Duke University in 1997 and was inducted into the Florida Artists Hall of Fame in 1999. Her work is part of dozens of collections, including that of the Smithsonian Museum of American Art in Washington, D.C.
She died at New Smyrna Beach in 2000, a week after her seventy-first birthday.
Figure 5. Leeper's "Untitled," enamel on fiberboard, in collection of Smithsonian American Art Museum. |
|---|
Figure 8. Mosquito Lagoon and the Leeper dock, looking southwest. |
|---|
Note: The following description of the site and its buildings was compilied in 2002. There have been a number of changes since that time, including removal of the garage, studio/guest house, and dock. Unless otherwise noted, all photographs were taken by the author in August 2002.
The 1.63-acre site of the Leeper House includes Lots 2-6 and a fraction of Lot 7 as platted for the Eldora Sportsmen Subdivision, with the house situated on Lots 4 and 5. Much of the site is covered in lawn and features mature live oak (Quercas sempiverens), red cedar (Juniperus virginiana), and palmetto palm (Sabal palmetto)
An asphalt tennis court, probably dating to the 1960s, is situated in front of the guest house/studio and just south of the main house. The net posts and backdrop fencing for the court have been removed and the painted and lined asphalt surface of the court is cracked and no longer suitable for play. Along the southwestern side of the site, a wooden dock, which perhaps dates to the 1920s, extends into Mosquito Lagoon.
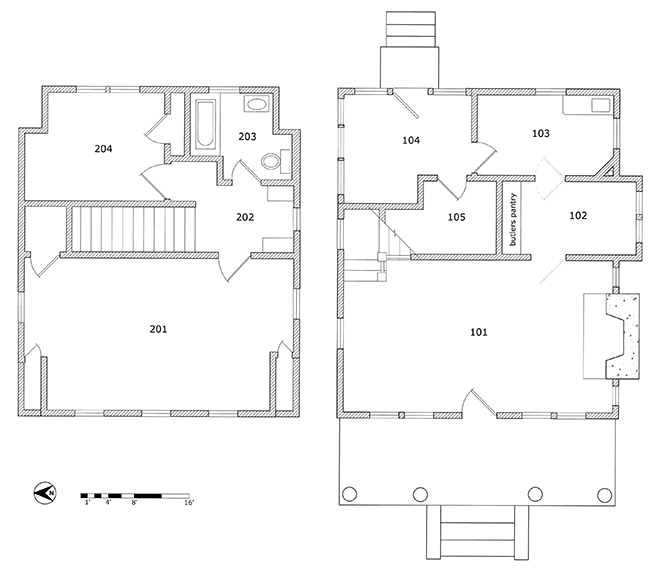
Facing west, the Leeper House is a one-and-a-half story, wood-framed, Craftsman-style structure with end gables and shed-roofed dormers on the front and rear. There is a full-width front porch and a small back porch, both of which have been enclosed. The first floor encompasses about 865 square feet, including the porches, and features a large living room running the width of the house along with a small dining nook, a kitchen, and a pantry off the enclosed back porch. The second floor contains about 655 square feet and includes a large bedroom across the front of that floor and a smaller bedroom and bathroom at the rear.
Figure 13. Leeper House, looking southwest. |
Figure 14. Leeper House, looking southeast. |
|---|
Figure 15. Floor plans of Leeper House. (T. Jones, 2002) |
|---|
Foundation: The wood frame of the house, which is elevated around 18" above grade, rests on brick foundation piers and curtain walls that were built on a poured concrete footing extending a few inches above grade. Most of it is in excellent condition except around the southwest corner of the front porch where now-removed vegetation caused some heaving of the foundation. A few bricks have also been lost from the curtain wall in that area, which has allowed the loss of some of the fill on which the porch floor slab rests and may have contributed to the cracks that have developed in the slab. In addition, the foundation has settled and cracked along the north side of the house in the vicinity of the abandoned cistern beneath the back porch.
It is not clear if the chimney has been rebuilt or simply cleaned but it is in excellent condition. The partially-filled gap visible on the exterior between the masonry and the wall of the house may simply be a result of the manner in which the chimney was constructed.
Structure: The wood frame of the house could not be inspected, but there is no evidence of significant structural problems. The design of the foundation with its raised concrete footing may have helped limit termite damage to the wood framing.
Windows and Doors: Windows typically have 6/1, double-hung, counter-weighted sash and are in generally good condition, although the double windows at the north end of the front of the house were removed when that end of the front porch was enclosed in the 1950s. Park staff are in the process of repairing all of the remaining double-hung windows, including replacement of all sash cord. Wood-framed screens for most of the original windows survive and are stored in the garage along with solid wooden storm shutters.
The casement windows that were used to enclose the front porch remain intact, but half of the sliding sash used to enclose the back porch have disappeared and all have been replaced with the present fixed panes of glass. The oak front door is a typical, early-twentieth-century door with a large panel of beveled glass above a smaller, raised wooden panel. The hinges feature an unusual surface-mounted leaf and are of the same type used elsewhere in the house. The double doors added when the south end of the front porch was enclosed (in the 1960s?) each have three horizontal panels beneath a three-light sliding sash. Neither door is in good condition. The doors that were used when the back porch was enclosed have been replaced with modern store-front doors, probably when the rear deck was installed in the 1980s or 1990s.
Exterior Finishes: The exterior is finished with cypress siding and trim, almost all of which is in excellent condition. Paint has been stripped or has worn away from most of the south side of the house.
The solid decking used on the roof indicates that the roof was originally finished with metal or asphalt shingles, the latter being most likely. The existing asphalt roof covering has been temporarily repaired but is in only fair condition.
Interior Finishes: Most of the interior walls and ceilings are finished with sand-finished plaster on wood lath. The kitchen ceiling is finished with 1" by 6", V-joint, tongue-and-groove boards and the upstairs bathroom has a smooth-plaster wainscot to 50", scored to resemble 3" by 8" wall tiles typical of the early twentieth century. Except for significant water damage to the ceiling in the dining nook, most of the plaster in the house is in excellent condition.
Figure 20. Leeper House, living room, looking south. |
Figure 21. Leeper House, living room, looking north. |
|---|
Most of the floors are finished with tongue-and-groove, oak flooring, 2¼" wide, although the small upstairs bedroom (204) is carpeted and could not be inspected. The front porch (100) is concrete slab on fill. The back porch floor, which is now covered with pine tongue-and-groove flooring, is a similar concrete slab that covers a large concrete cistern, which remains intact beneath the present flooring (see Figure 5).
Most interior woodwork is oak. Door and window casings are typically 4" wide with a ¾ " back band. Baseboards are typically 7½" high with a simple chamfered edge at the top and a chamfered, ½" by ¾" shoe mold at the floor. Picture mold, 1-⅝ " wide, is set about ¾" below the ceilings in the living room, dining nook, and bedrooms. Woodwork in the living room, stairwell, upstairs hall, and kitchen is stained and shellacked; in the dining nook, bedrooms, and bathroom, woodwork has been painted.
Most of the house's original light fixtures are missing. The lantern at the front door may be an original fixture, and one of the original light fixture canopies remains in the dining nook. Two original sconces survive in the master bedroom (201) and the bathroom has retained its original, un-shaded ceiling fixture.
The house was built with a single fireplace in the living room, but stoves were also apparently used for heating. There is an opening for a stove-pipe into the chimney breast, probably for an oil-fired heater. A second heater, perhaps using propane, was installed at some time against the north wall, where there is still a wall opening for a flue. An attic fan was installed at an early date in the ceiling of the hall upstairs. It remains in the attic but has been replaced by the present fan in the same location.
The kitchen and the bathroom have not been remodeled since the house was built, with the original sinks, toilet, tub, and faucets still in place. Some if not all of the water supply lines have been replaced by plastic pipe, but the original cast-iron waste lines are still in use. Waste lines and probably supply lines as well are run through a chase built in the southwest corner of the kitchen.
Garage
Measuring about 31'-6" north to south and about 17'-5" east to west, the garage is a wood-framed structure set on a poured concrete slab. Exterior walls are finished with lap siding laid with a reveal between 5" and 6" The overall condition of the building is good.
The interior is partitioned using 1" by 6" tongue-and-groove boards, installed vertically, to create two small rooms at the rear (north end) of the structure. The room at the east end is entered from inside the garage; the room at the west end is entered from the outside of the building. In the center of the west room is a raised, cast-concrete form that Leeper may have used in her sculpting.
Figure 32. Garage, looking northeast. |
Figure 33. Garage interior. |
|---|
Figure 34. Plan of Garage. |
Figure 35. Northwest room in garage. |
|---|
Guest House/Studio
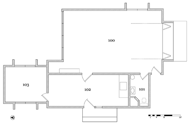
Located southeast of the main house and containing around 1,033 square feet of floor area, this Modernist building was built by Leeper around 1969, apparently as a combination guest house and artist's studio. Probably designed by an architect (who has not been unidentified), the building consists of three main blocks of different volume and height: the studio block (Room 100); the kitchen/bathroom block (Rooms 101-102); and the bedroom block (Room 103). Built on a grade-level concrete slab, the building is wood-framed and has a flat, built-up, tar-and-gravel roof. The exterior is finished with 8"-wide fiberboard siding. Windows are aluminum, awning type; doors are wooden.
Figure 36. Plan of Leeper Studio/Guest House. (T. Jones, 2002) |
|---|
Figure 37. Leeper studio, looking southeast. |
Figure 38. Leeper studio, looking south. |
|---|---|
Figure 39. Leeper studio, looking northwest. |
Figure 40. Leeper studio, looking northeast. |
Interior walls are finished with ¼ " plywood in the studio, bathroom, and kitchen and with ½" drywall in the bedroom. Ceilings in the studio and bathroom are finished with ¼" plywood; ceilings in the kitchen and bedroom are finished with fiberboard laid between exposed joists. Floors are bare concrete, except in the bedroom where the floor has been carpeted wall to wall.
Figure 43. Studio kitchen, lookinig south. |
Figure 44. Studio guest room, looking northeast. |
|---|
Baseboards are plain ½" by 3½" boards in the studio and kitchen; "teardrop" base, ⅜" by 3", is used in the bedroom. Windows are recessed in uncased openings. Doors are cased with "teardrop" molding, 2½" wide in the bedroom and 1¾" wide elsewhere.
The studio is approximately 20' by 30' and has a ceiling set at 12'. In addition to the exterior entrance near the southwest corner of the room and the door that connects to the kitchen (102), a large opening, 10'-7" wide by 9'-5" high, opens at the south end of the space to a short concrete ramp. The opening is closed by a roll-up door and includes a pair of bifold, wood-framed, screened doors. A large metal ventilator is located near the center of the ceiling and fluorescent strip lighting is used to light the room. The kitchen is approximately 10' by 29' under a 9' ceiling of open joists. Parts of the original plywood wall covering have been replaced with unpainted plywood. The exterior door, which opens on to a concrete stoop, is in poor condition.
The bedroom is approximately 11' by 13' and has an 8' ceiling. The exposed ceiling joists are 6" by 6" antique timbers salvaged from another building. The room is heated by an electric baseboard heater on the south wall.
|







































